Dubai Real Estate: Better Developer Deals During the Crisis?

 DEC 2028

 On Sale

Apartments for Sale in
Joud Tower

 Ajmal Makan City, Sharjah

About Joud Tower

Joud Tower is a landmark residential development rising along the Sharjah waterfront, designed to redefine modern urban living through architecture, scale, and location. The tower offers a diverse collection of spacious residences arranged across multiple levels, combining panoramic views of Al Mamzar and Al Khan with a strong sense of privacy and refinement. Its contemporary form and carefully planned layouts cater to families and discerning residents seeking a prestigious address with seamless access to key destinations and everyday services.

The project delivers a fully integrated lifestyle supported by a comprehensive range of amenities and on-site conveniences. Residents enjoy access to a fully equipped gymnasium with separate male and female wellness blocks featuring sauna and steam rooms, as well as swimming and kids’ pools, a padel court, running track, and dedicated children’s play areas. Social and everyday needs are addressed through a multipurpose hall, café, prayer rooms, nursery, and retail spaces at ground level. The living environment is enhanced by controlled service circulation, 24/7 concierge support, restricted smart access for residents, and a full maintenance team on site, while every residence is equipped with smart home technology for added comfort and security.

Interiors at Joud Tower are defined by modern design and refined finishes, with apartments delivered as smart homes for enhanced comfort and control. Kitchens are fitted with integrated appliances and sleek cabinetry, complemented by contemporary surfaces and functional layouts. Bedrooms feature built-in wardrobes, while living spaces are finished with high-quality materials, clean lines, and a neutral palette that allows residents to personalize their homes with ease.

Location description and benefits

Al Mamzar is one of the prominent attractions in the area, offering a beautiful beachfront with well-maintained gardens, barbecue areas, and playgrounds. Families often visit the Mamzar Beach Park for picnics and relaxation.

Al Mamzar primarily consists of residential neighborhoods with a mix of villas, apartments, and townhouses. The area provides a peaceful and family-friendly living environment. The area is known for its lagoon, which adds to the scenic beauty of the locality. The lagoon is surrounded by greenery and provides a serene atmosphere.

Apart from the beach park, Al Mamzar offers various recreational facilities such as jogging tracks, cycling paths, and sports areas. Residents and visitors can engage in outdoor activities and sports. Al Mamzar is strategically located near the Dubai-Sharjah border, making it easily accessible from both emirates. This proximity allows residents to enjoy the amenities and attractions of both Sharjah and Dubai. The area features a mix of retail outlets, restaurants, and cafes, providing residents with convenient access to daily necessities and dining options.

Location

Facilities

Kids Play Area
Swimming Pool
Gymnasium
Multipurpose Hall
Padel Court
Steam & Sauna
Jogging & Walking Track
Retail Stores
Community Café
10

Available Units

Apartments

Type: Apartments

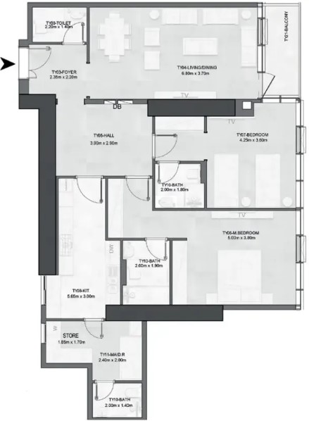
Bedrooms: 2 Bedrooms

Availability: Available

Price: AED 1,564,000 - 2,235,000

Deposit from: AED AED 156,400

Size: 1541.68 sqf

Parking: 1

Apartments

Type: Apartments

Bedrooms: 3 Bedrooms

Availability: Available

Price: AED 2,511,000 - 3,103,000

Deposit from: AED AED 251,100

Size: 2387.85 sqf

Parking: 2

Apartments

Type: Apartments

Bedrooms: 4 Bedrooms

Availability: Available

Price: AED 3,446,000 - 4,261,000

Deposit from: AED AED 344,600

Size: 3073.41 sqf

Parking: 2

Payment Plans

  • On booking 10.00%
  • During construction 30.00%
  • Upon handover 60.00%
  • Post-Handover 0.00%
  • On booking 10.00%
  • During construction 35.00%
  • Upon handover 1.00%
  • Post-Handover 54.00%
Connect with the expert on this project.